Thiết kế nhà chữ L 2 tầng 80m2 đang trở thành xu hướng hiện nay và được nhiều người lựa chọn. Bởi diện tích và chi phí phù hợp với túi tiền của người Việt. Với nhu cầu cao thì ngày càng nhiều mẫu mã đã được kiến trúc sư thiết kế ra đời , Dưới đây là tổng hợp 20 mẫu thiết kế nhà chữ L 2 tầng 80m2 đẹp mắt, hiện đại và đầy đủ tiện nghi từ N&N Home.

Những đặc điểm nổi bật của thiết kế nhà chữ L 2 tầng 80m2
Tận dụng diện tích và không gian
Thiết kế chữ L có thể tận dụng tốt diện tích đất hẹp hoặc hữu ích vị trí hạn chế. Điều này làm cho nó phù hợp cho các khu vực có mật độ xây dựng cao hoặc vị trí có giới hạn về diện tích đất. Thiết kế chữ L thường tận dụng không gian sân sau hoặc sân trước để tạo ra không gian sống mở và thoáng đãng.
Tính linh hoạt trong thiết kế nội thất
Kiểu nhà chữ L cung cấp nhiều lựa chọn linh hoạt trong việc sắp xếp nội thất. Giúp các Kiến Trúc Sư có thể dễ dàng tạo ra các không gian riêng biệt cho mỗi hoạt động gia đình mà vẫn đảm bảo mối liên kết và thông suốt giữa các không gian.

Tiết kiệm chi phí
Hình dạng chữ L này tận dụng hiệu quả diện tích đất, giúp giảm chi phí mua đất và vật liệu xây dựng. Sự tiết kiệm không chỉ xuất phát từ diện tích đất hẹp hơn mà còn từ sự đơn giản trong thiết kế, làm giảm thời gian và nhân công thi công.
Xây dựng không gian mở
Dạng chữ L tạo ra một khoảng trống tự nhiên tại phần trước hoặc bên hông của ngôi nhà, mà bạn có thể tận dụng để xây dựng các không gian ngoài trời, chẳng hạn như sân vườn, sân thượng hoặc ban công làm tăng giá trị thẩm mỹ cho ngôi nhà mà còn mang lại lợi ích cho tâm hồn và tạo môi trường sống gần gũi với thiên nhiên. Đồng thời giúp gia đình bạn tận hưởng cuộc sống ngoài trời một cách thoải mái và tiện lợi.

Mặt bằng công năng cho nhà chữ L 2 tầng 80m2

Tầng 1: Bố trí phòng khách rộng rãi ngay phía trước, liên thông với cầu thang trung tâm. Bên cạnh là một phòng ngủ tiện lợi cho ông bà hoặc khách. Khu bếp – ăn đặt ở nhánh chữ L, có cửa phụ mở ra sân vườn tạo sự thoáng mát, đi kèm nhà vệ sinh chung thuận tiện sử dụng.

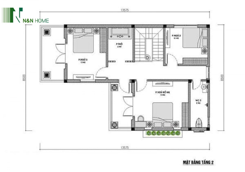
Tầng 2: Gồm 3 phòng ngủ cho bố mẹ và các con, đảm bảo riêng tư. Phòng thờ đặt ở vị trí trung tâm, hướng ra mặt tiền hợp phong thủy. Ngoài ra có nhà vệ sinh chung và ban công giúp lấy sáng, đón gió, mang lại sự thông thoáng cho cả ngôi nhà.
Những mẫu thiết kế nhà chữ L 2 tầng 80m2
Kiểu thiết kế nhà chữ L hiện đại


Mẫu nhà chữ L 2 tầng phong cách hiện đại ghi điểm nhờ đường nét vuông vức, mái bằng chắc chắn và hệ cửa kính lớn giúp lấy sáng tự nhiên. Ngoại thất thường phối gam màu trung tính như trắng, xám, nâu, tạo cảm giác sang trọng nhưng không kém phần trẻ trung. Gia chủ có thể tận dụng khoảng sân chữ L để thiết kế tiểu cảnh, hồ bơi hoặc gara. Đây là kiểu thiết kế phù hợp cho những gia đình trẻ yêu thích phong cách sống tiện nghi và năng động.
Mẫu thiết kế nhà chữ L mái Thái


Nhà chữ L mái Thái mang lại vẻ đẹp thanh thoát và rất hợp khí hậu Việt Nam. Phần mái dốc cao giúp thoát nước nhanh, chống nóng và chống ẩm hiệu quả. Kiến trúc thường kết hợp phong cách tân cổ điển với cột trụ, ban công vòm cùng cửa kính khung gỗ tinh tế.
Bố trí sân vườn quanh nhà không chỉ tăng tính thẩm mỹ mà còn tạo không gian nghỉ ngơi xanh mát. Đây là mẫu nhà chữ L đẹp dành cho gia đình muốn sự sang trọng, bền vững và hài hòa thiên nhiên.
Mẫu thiết kế nhà chữ L 2 tầng với mái bằng
Ưu điểm của thiết kế này là gọn gàng, hiện đại và chi phí xây dựng hợp lý. Mái phẳng bê tông kiên cố có thể tận dụng làm sân thượng, trồng cây hoặc tổ chức tiệc ngoài trời. Lan can kính và cửa kính khung hợp kim tạo cảm giác thoáng sáng, gần gũi với phong cách sống đô thị. Dù đơn giản, nhưng kiểu nhà này vẫn đáp ứng đầy đủ công năng cho gia đình từ 4–5 thành viên.



Top những mẫu nhà chữ L mái Nhật 2 tầng
Nhà chữ L 2 tầng mái Nhật được yêu thích bởi sự tinh tế, nhẹ nhàng và gần gũi. Mái dốc thoai thoải, đổ về nhiều hướng giúp thoát nước tốt và hạn chế nấm mốc. Ngoại thất hiện đại, kết hợp ban công rộng cùng gara ô tô mở. Đây là mẫu thiết kế vừa đẹp mắt vừa bền vững, phù hợp cho cả thành phố lẫn ngoại ô.



Mẫu nhà 2 tầng chữ L cổ điển
Nếu yêu thích sự lãng mạn, gia chủ có thể chọn nhà chữ L 2 tầng cổ điển với gam màu trắng, kem, vàng nhạt kết hợp mái ngói đỏ nổi bật. Các chi tiết phào chỉ tinh xảo tạo vẻ sang trọng, trường tồn. Ngoài ra, mẫu nhà chữ L kết hợp sân vườn cũng rất được ưa chuộng. Góc khuyết chữ L thường được tận dụng làm tiểu cảnh, sân chơi hoặc hồ bơi mini, mang lại cuộc sống trong lành, gần gũi với thiên nhiên.

Mẫu nhà chữ L 2 tầng kết hợp sân vườn
Với gia đình nhiều thành viên, mẫu nhà chữ L 2 tầng 80m2 có 4 phòng ngủ là giải pháp hợp lý. Không gian được bố trí khoa học để vừa đảm bảo sự riêng tư, vừa thông thoáng. Tầng một thường dành cho phòng khách và bếp, tầng hai cho phòng ngủ và phòng thờ. Đây là lựa chọn hoàn hảo cho gia đình đông con hoặc nhiều thế hệ cùng sinh sống.



Nhà chữ L 2 tầng 80m2 4 phòng ngủ
Mẫu nhà chữ L 2 tầng 80m2 4 phòng ngủ là lựa chọn lý tưởng cho gia đình nhiều thế hệ. Với thiết kế thông minh, không gian 160m2 vẫn đủ để bố trí phòng khách, bếp ăn tiện nghi cùng bốn phòng ngủ rộng rãi, đảm bảo sự riêng tư và thoải mái cho từng thành viên. Kiểu dáng chữ L giúp ngôi nhà luôn thoáng mát, hiện đại và hài hòa với thiên nhiên.




N&N Home-đơn vị thiết kế nhà 2 tầng chữ L 80m2 uy tín
N&N Home, đối tác uy tín trong lĩnh vực thiết kế và xây dựng nhà, sẵn sàng hỗ trợ bạn với một dự án thiết kế nhà chữ L 2 tầng diện tích 80m2 đầy đủ chuyên nghiệp và tận tâm. Với đội ngũ kỹ sư và KTS có nhiều năm kinh nghiệm, chúng tôi cam kết sẽ tạo ra một ngôi nhà đáp ứng toàn bộ yêu cầu của bạn. Từ quy trình Tư vấn – Thiết kế – Thi công – Sửa chữa, chúng tôi luôn đảm bảo chất lượng tốt nhất cho công trình của bạn.

Liên hệ với chúng tôi ngay để chúng tôi có thể bắt đầu dự án của bạn!
Với các lựa chọn và gợi ý được nêu trên, hy vọng bạn đã tìm thấy thiết kế mơ ước cho ngôi nhà của mình. N&N Home luôn sẵn sàng hỗ trợ bạn trong việc tạo dựng không gian sống phù hợp nhất. Hãy để chúng tôi đồng hành với bạn để tạo nên một ngôi nhà 2 tầng 80m2 ấn tượng và đáng sống.
Công ty xây dựng N&N Home – Chuyên xây dựng nhà trọn gói với giá rẻ, luôn sẵn sàng phục vụ bạn qua hotline: 0945 170 909 – KTS Nguyên hoặc truy cập trang web của chúng tôi tại https://nnhome.com.vn/ để biết thêm chi tiết.
Công ty xây dựng N&N Home
Địa chỉ: 15 Khu Dân Cư Vườn Cau, Phường Hiệp Bình Phước, Q.Thủ Đức TPHCM
Hotline: 0945 170 909 (KTS. Nguyên)
Website: https://nnhome.com.vn/





