Những thiết kế nhà cấp 4 8x10m luôn là lựa chọn hàng đầu của nhiều gia đình bởi đáp ứng các tiêu chí tối ưu chi phí, diện tích phù hợp. Nếu bạn đang tìm kiếm ý tưởng cho tổ ấm của mình thì bài viết sau đây N&N Home sẽ gửi đến bạn những thiết kế nhà cấp 4 8x10m xu hướng 2025
Lợi thế của những thiết kế nhà cấp 4 8x10m
Tối ưu hóa chi phí xây dựng
Nhà cấp 4 diện tích 8x10m giúp tối ưu chi phí với thiết kế phù hợp, tránh lãng phí không gian. Với diện tích vừa đủ, ngôi nhà có thể bố trí đầy đủ các không gian sống cần thiết mà không cần đầu tư vào các khu vực thừa thãi.
Điều này không chỉ giảm chi phí xây dựng mà còn tập trung vào những phần quan trọng, mang lại sự tiện nghi cho gia đình.

Mẫu thiết kế mang tính ứng dụng cao
Tính ứng dụng cao
Nhà cấp 4 có thể xây dựng trên nhiều loại đất khác nhau, từ khu đô thị chật chội đến vùng ngoại ô rộng rãi, đáp ứng tốt với nhu cầu và điều kiện của từng gia đình

Màu sắc tươi sáng mang lại cảm giác rộng rãi
Quá trình thiết kế, thi công đơn giản
Thiết kế đơn giản giúp giảm thời gian thi công và chi phí nhân công, đồng thời tối ưu hóa không gian sử dụng mà không cần thêm các khu vực phụ hoặc cải tạo sau này.

Ngôi nhà được xây dựng khuôn viên tươi xanh
Bản vẽ mặt bằng công năng thiết kế nhà cấp 4 8x10m
Với diện tích 8x10m, mẫu nhà cấp 4 có thể linh hoạt bố trí công năng tùy thuộc vào nhu cầu của gia chủ. Các bản vẽ mặt bằng dưới đây thể hiện những phương án điển hình, từ cơ bản đến hiện đại, đáp ứng đa dạng mục đích sử dụng.
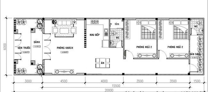
Nhà cấp 4 8x10m 2 phòng ngủ
Thiết kế này chú trọng vào sự gọn gàng, phù hợp cho gia đình nhỏ. Không gian sinh hoạt chung gồm phòng khách và bếp – ăn liên thông, tạo cảm giác rộng thoáng. Hai phòng ngủ được bố trí cạnh nhau, thuận tiện di chuyển và vẫn đảm bảo sự riêng tư. Phần sân trước, sân sau và khu vệ sinh được sắp xếp hợp lý, giúp sinh hoạt thoải mái hơn.

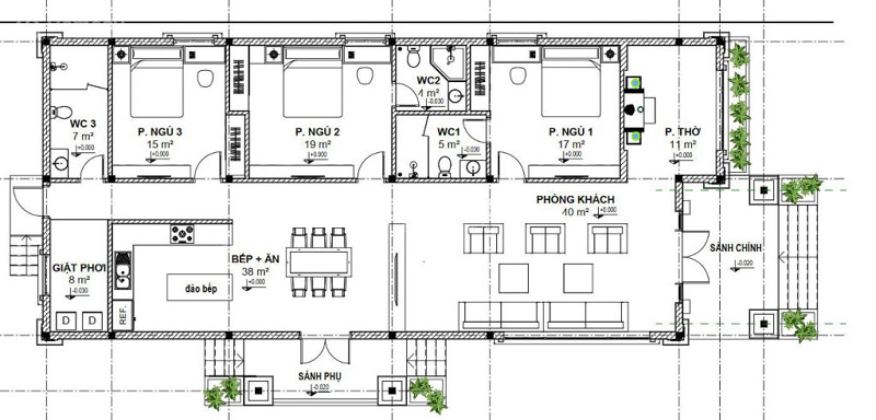
Nhà cấp 4 8x10m 3 phòng ngủ
Với nhu cầu của gia đình đông người, phương án 3 phòng ngủ được nhiều người lựa chọn. Phòng khách đặt ở trung tâm, liền kề với khu bếp để kết nối các thành viên. Ba phòng ngủ được phân bổ đều, có WC gần kề để tiện sử dụng. Cách bố trí này vừa tối ưu diện tích vừa mang đến sự cân bằng giữa riêng tư và sinh hoạt chung.

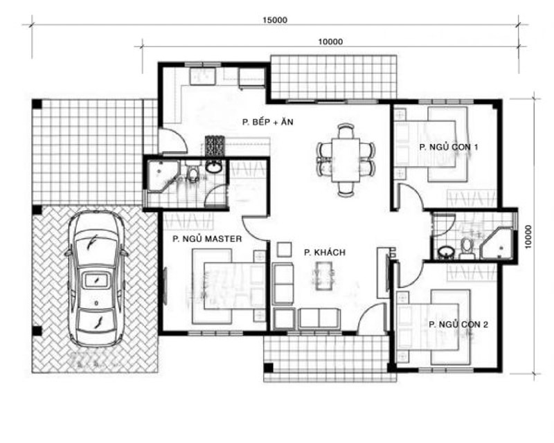
Nhà cấp 4 8x10m có gara ô tô
Mẫu nhà này phù hợp với gia đình có phương tiện cá nhân. Gara ô tô được đặt bên hông hoặc phía trước, đảm bảo thuận tiện di chuyển mà không ảnh hưởng đến các không gian khác. Bên trong, phòng khách vẫn giữ vai trò trung tâm, kết nối với phòng bếp. Các phòng ngủ được bố trí tách biệt, mang lại sự yên tĩnh cho gia chủ.

Nhà cấp 4 8x10m có gác lửng
Thiết kế gác lửng là giải pháp tăng diện tích sử dụng cho nhà cấp 4. Tầng trệt thường bố trí phòng khách, phòng bếp, phòng vệ sinh và một phòng ngủ chính. Trên gác lửng là không gian thờ, thêm 1–2 phòng ngủ hoặc phòng sinh hoạt tùy nhu cầu. Nhờ vậy, căn nhà vừa giữ được vẻ đẹp gọn gàng bên ngoài vừa có công năng linh hoạt, thích hợp cho gia đình trẻ.

Top 19+ mẫu thiết kế nhà cấp 4 8×10 m tiện nghi
Mẫu thiết kế nhà cấp 4 8x10m phong cách hiện đại
Thiết kế nhà cấp 4 8x10m phong cách hiện đại thường có các đường nét đơn giản, màu sắc trung tính, và cửa kính lớn để tận dụng ánh sáng tự nhiên. Không gian mở giữa phòng khách và phòng bếp tạo cảm giác thông thoáng và rộng rãi. Sử dụng các vật liệu như bê tông, kính, và gỗ để tạo nên vẻ đẹp hiện đại và sang trọng.

Thiết kế mái chữ A đơn giản hiện đại

Sử dụng vật liệu kính trong suốt đón nhiều ánh nắng

Thiết kế đơn giản gọn gàng phù hợp cho gia đình nhỏ
Mẫu thiết kế nhà cấp 4 8×10 m mái Thái
Thiết kế mái Thái nổi bật với độ dốc mái cao, giúp thoát nước tốt và tạo vẻ bề thế cho ngôi nhà. Mái có thể được lợp bằng ngói hoặc tôn tùy theo sở thích. Phần mái có thể tạo thành các góc nhỏ để làm ban công hoặc tiểu cảnh, mang lại không gian thư giãn cho gia đình.

Sân vườn rộng rãi thích hợp cho gia đình vui chơi

Sân nhà rộng rãi có khu để xe tiện lợi

Thiết kế mái thái tiện lợi rộng rãi
Mẫu thiết kế nhà cấp 4 8x10m mái Nhật
Nhà cấp 4 mái Nhật thường có thiết kế mái thấp, dốc nhẹ và tường dày, tạo cảm giác gần gũi và thân thiện. Mái thường được lợp bằng ngói hoặc tôn với nhiều màu sắc khác nhau. Thiết kế không gian mở, kết hợp với cây xanh xung quanh, mang lại cảm giác yên bình và hài hòa với thiên nhiên.

Thiết kế mái nhật sang trọng tinh tế

Thiết kế cửa gỗ cổ điển họa tiết độc đáo

Không gian sân vườn có hoa viên tươi sáng
Mẫu thiết kế nhà cấp 4 8x10m mái bằng
Mẫu nhà cấp 4 diện tích 8x10m mái bằng mang phong cách hiện đại, tối giản với các đường nét vuông vức. Thiết kế mái bằng giúp tiết kiệm chi phí, dễ thi công và tận dụng không gian làm sân thượng hoặc mở rộng thêm tầng.

Ngôi nhà mái bằng hiện đại

Khuôn viên được trồng nhiều hoa tươi

Đường nét ngôi nhà mạnh mẽ màu sắc tươi sáng
Mẫu thiết kế nhà cấp 4 8x10m có sân vườn
Không gian sân vườn mang đến sự thoáng mát và gần gũi thiên nhiên. Gia chủ có thể trồng cây xanh hoặc tạo tiểu cảnh nhỏ. Bố cục phòng khách, bếp và phòng ngủ vẫn đảm bảo tiện nghi. Đây là lựa chọn lý tưởng cho gia đình yêu thích sự yên bình.



Mẫu thiết kế nhà cấp 4 8x10m có gác lửng
Thiết kế gác lửng giúp mở rộng công năng mà không tốn nhiều chi phí. Tầng trệt bố trí phòng khách, bếp và một phòng ngủ. Trên gác lửng có thêm phòng ngủ hoặc phòng thờ. Kiểu nhà này vừa gọn gàng vừa phù hợp gia đình trẻ.



Gợi ý cách thiết kế nhà cấp 4 8x10m tiết kiệm
Thời điểm xây dựng
Việc xây nhà vào mùa khô giúp tiết kiệm thời gian và chi phí thi công, hạn chế tình trạng gián đoạn do thời tiết.

Thiết kế hiện đại sang trọng sử dụng cửa kính nổi bật
Sử dụng dịch vụ trọn gói
Lựa chọn nhà thầu cung cấp dịch vụ từ thiết kế đến thi công giúp tiết kiệm chi phí và thời gian, đồng thời tránh phát sinh chi phí không cần thiết. Đảm bảo thỏa thuận cụ thể về chi phí với nhà thầu ngay từ đầu để tránh phát sinh sau này.

Mẫu nhà thích hợp cho gia đình nhỏ hiện đại
Lựa chọn nguồn cung cấp nguyên vật liệu
Việc tìm kiếm và so sánh giá từ nhiều nguồn cung cấp vật liệu để chọn nhà cung cấp có giá hợp lý và chất lượng đảm bảo. Giá vật liệu thường rẻ hơn vào mùa thấp điểm xây dựng, giúp bạn tiết kiệm được một khoản đáng kể.

Họa tiết đơn giản đường nét rắn rỏi
Gợi ý phong thủy thiết kế nhà cấp 4 8x10m mới nhất
Lựa chọn hướng nhà
Gia chủ nên lựa chọn hướng Nam, Đông Nam hoặc Đông, vì đây là các hướng đón nhiều ánh sáng và gió mát, tạo không khí thoáng đãng và dễ chịu cho ngôi nhà. Tránh xây nhà hướng Tây hoặc Tây Bắc, vì các hướng này thường đón nắng gắt vào buổi chiều, gây nóng bức và không thoải mái.

Cửa chính đường nét ống vòm rộng rãi
Sử dụng các tiểu cảnh trang trí
Bố trí cây xanh ở các góc nhà, ban công hoặc sân trước giúp tạo không gian sống gần gũi với thiên nhiên. Có thể chọn các loại cây nhỏ hoặc cây leo để tiết kiệm diện tích.
Nếu có diện tích, có thể tạo một tiểu cảnh nước nhỏ như đài phun nước hoặc hồ cá, giúp mang lại cảm giác tươi mát và sinh động cho ngôi nhà.
Sử dụng đèn LED hoặc đèn năng lượng mặt trời cho các khu vực sân vườn để tạo ánh sáng nhẹ nhàng vào buổi tối, tạo không gian thư giãn.
N&N Home – Đơn vị thiết kế nhà cấp 4 8x10m chất lượng, uy tín
Với hơn 12 năm kinh nghiệm trong lĩnh vực thiết kế và xây dựng, N&N Home tự hào đã hoàn thành hàng trăm dự án với sự hài lòng cao từ khách hàng. Chúng tôi cam kết mang đến giá trị bền vững qua chất lượng ưu việt, đảm bảo tiến độ và nằm trong ngân sách. Với phương châm “Chất lượng hàng đầu – Tiến độ nhanh chóng – Chi phí hợp lý”, N&N Home luôn sẵn sàng đồng hành cùng quý khách hàng ở mọi giai đoạn, mang đến những ngôi nhà không chỉ đẹp mà còn bền vững theo thời gian.
N&N Home – Chuyên thiết kế kiến trúc, thiết kế nhà phố, thiết kế nội thất
Hotline: 0945 170 909 – Mr Nguyên
Website: https://nnhome.com.vn





