Một ngôi nhà ấn tượng, đẹp hẳn là ước mơ của nhiều người. Thiết kế nhà 4x8m 1 tầng là lựa chọn thích hợp với nhiều hộ gia đình. Để thiết kế được một ngôi nhà như mong muốn không hẳn là điều đơn giản. Gia chủ không biết bắt đầu từ đâu, lựa chọn nhà thầu nào cho uy tín, chuyên nghiệp. Tại bài viết này, N&N Home sẽ giúp quý khách hàng giải quyết những vấn đề nêu trên và gửi đến những mẫu thiết kế 4x8m 1 tầng để tham khảo.
>>> Báo giá xây nhà trọn gói N&N Home 2025
Ưu điểm của thiết kế nhà 4x8m 1 tầng
Tối ưu không gian cho gia đình nhỏ
Với diện tích 32m2, mẫu nhà 4x8m 1 tầng phù hợp cho các cặp vợ chồng trẻ hoặc gia đình ít thành viên. Thiết kế thông minh giúp tận dụng tối đa diện tích sử dụng, tạo không gian sống tiện nghi mà vẫn đảm bảo sự riêng tư.
Chi phí xây dựng hợp lý
So với những mẫu nhà nhiều tầng, nhà 1 tầng có chi phí đầu tư thấp hơn đáng kể. Gia chủ có thể dễ dàng kiểm soát ngân sách mà vẫn đảm bảo đầy đủ công năng cơ bản cho sinh hoạt hằng ngày.

Dễ thi công, phù hợp khu đô thị, khu dân cư
Với kết cấu đơn giản, nhà 1 tầng dễ thi công và không tốn nhiều thời gian. Đây là lựa chọn lý tưởng tại các khu dân cư có diện tích hạn chế, đường nhỏ hoặc khu vực quy hoạch thấp tầng.
Linh hoạt trong bố trí công năng
Dù diện tích nhỏ, nhưng nhờ cách bố trí hợp lý, mẫu nhà này vẫn có thể sắp xếp 1 phòng khách, 1-2 phòng ngủ, bếp, vệ sinh và khu phơi đồ. Gia chủ cũng có thể linh hoạt thay đổi thiết kế theo nhu cầu thực tế.

Lưu ý khi thiết kế nhà 4x8m 1 tầng
Chọn màu sáng để mở rộng không gian
Với diện tích nhỏ, việc sử dụng tông màu sáng như trắng, kem, ghi nhạt sẽ giúp không gian trở nên rộng rãi và thoáng đãng hơn. Kết hợp thêm ánh sáng tự nhiên từ cửa sổ hoặc giếng trời sẽ càng tăng hiệu ứng thị giác.
Ưu tiên nội thất thông minh
Để tiết kiệm diện tích, nên chọn nội thất đa năng như giường gấp, tủ âm tường, bàn ăn gập. Những món đồ này giúp giữ không gian luôn gọn gàng mà vẫn đảm bảo đầy đủ tiện nghi.

Bố trí giếng trời hoặc ô thoáng hợp lý
Ánh sáng và gió tự nhiên rất quan trọng với nhà nhỏ. Bố trí giếng trời hoặc các ô thoáng sẽ giúp lưu thông không khí tốt hơn, hạn chế ẩm mốc và tạo cảm giác dễ chịu khi sinh hoạt.

Cân đối chi phí vật liệu và nhân công
Thiết kế đơn giản, vật liệu phổ thông nhưng bền đẹp sẽ giúp tối ưu chi phí mà vẫn đảm bảo chất lượng công trình. Đồng thời, lựa chọn đội ngũ thi công uy tín sẽ giúp hạn chế phát sinh ngoài ý muốn.

Gợi ý bố trí công năng khoa học cho thiết kế nhà 4x8m 1 tầng
Việc bố trí công năng hợp lý trong thiết kế nhà 4x8m 1 tầng không chỉ giúp tối ưu diện tích mà còn nâng cao trải nghiệm sống. Mỗi không gian đều cần được sắp xếp khoa học, đảm bảo tính thẩm mỹ, tiện nghi và phù hợp phong thủy. Dưới đây là gợi ý phân chia công năng chi tiết cho từng khu vực chính trong ngôi nhà.
Phòng khách thiết kế nhà 4x8m 1 tầng
Trong thiết kế nhà 4x8m 1 tầng, phòng khách là trung tâm sinh hoạt chung và tiếp đón khách. Không gian nên ưu tiên ánh sáng tự nhiên, cửa sổ rộng để tạo sự thoáng đãng. Gia chủ có thể chọn sofa nhỏ gọn, bàn trà đơn giản và kết hợp vài chi tiết trang trí tinh tế. Những vật dụng như đèn thả, tranh treo hay cây xanh giúp căn phòng thêm sinh động và hiện đại.



Phòng ngủ thiết kế nhà 4x8m 1 tầng
Phòng ngủ trong thiết kế nhà 4x8m 1 tầng cần đảm bảo sự yên tĩnh và riêng tư. Nội thất nên ưu tiên giường đa năng, tủ âm tường để tiết kiệm diện tích. Ánh sáng dịu nhẹ kết hợp gam màu trung tính mang lại cảm giác thư thái. Bố trí cửa sổ nhỏ sẽ giúp căn phòng thông thoáng, cân bằng ánh sáng và phong thủy.


Phòng bếp thiết kế nhà 4x8m 1 tầng
Khu vực bếp trong thiết kế nhà 4x8m 1 tầng thường tích hợp cùng phòng ăn để tối ưu diện tích. Bếp đặt gần giếng trời hoặc cửa sổ sẽ giúp không gian luôn sáng sủa và thông thoáng. Nội thất thông minh, bàn ăn gọn nhẹ là giải pháp hoàn hảo cho gia đình nhỏ. Việc sắp xếp khoa học còn tạo sự thuận tiện trong nấu nướng và sinh hoạt hằng ngày.


Phòng vệ sinh thiết kế nhà 4x8m 1 tầng
Phòng vệ sinh trong thiết kế nhà 4x8m 1 tầng nên đặt ở vị trí kín đáo nhưng thuận tiện cho sinh hoạt. Diện tích nhỏ yêu cầu bố trí công năng khoa học và lựa chọn thiết bị vệ sinh nhỏ gọn. Vật liệu chống thấm, gạch chống trơn là yếu tố quan trọng giúp đảm bảo an toàn. Hệ thống thông gió và chiếu sáng hợp lý sẽ giữ không gian luôn sạch sẽ, khô ráo.


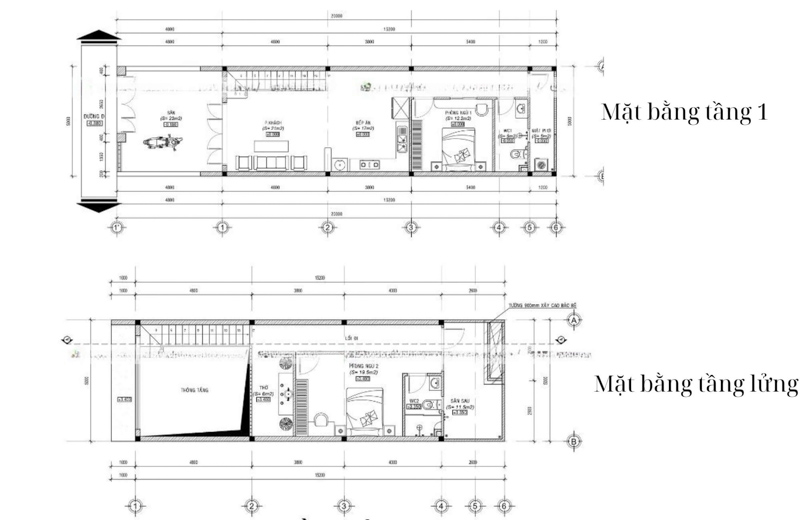
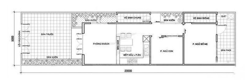
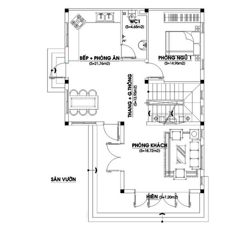
Bản vẽ mặt bằng công năng thiết kế nhà 4x8m 1 tầng
Bản vẽ mặt bằng là công cụ trực quan giúp gia chủ dễ hình dung toàn bộ không gian. Thông qua bản vẽ, việc phân chia phòng khách, phòng ngủ, bếp và vệ sinh trở nên rõ ràng, hợp lý hơn. Đây cũng là cơ sở để điều chỉnh thiết kế theo nhu cầu, đảm bảo công năng và thẩm mỹ.




Top những mẫu thiết kế nhà với kích thước 4x8m 1 tầng
Mẫu thiết kế nhà 4x8m 1 tầng với kiểu mái lệch độc đáo
Thiết kế nhà phố được nhiều hộ gia đình săn lùng, với diện tích 32m2 có thể xây dựng cũng như thiết kế nhiều phong cách, kiến trúc khác nhau. Cụ thể là mẫu nhà với thiết kế mái lệch trẻ trung, độc đáo.
Tùy vào sở thích của gia chủ mà ngôi nhà sẽ được bố trí nội thất, ngoại thất tiện dụng, tiết kiệm nhất, Kiến Trúc Sư sẽ giản lược bớt những chi tiết không cần thiết cho ngôi nhà của bạn. Tạo cho tổng thể ngôi nhà thật trẻ trung, năng động, những chi tiết tuy đơn giản nhưng không làm cho ngôi nhà trở nên đơn điệu hay mất đi tính thẩm mỹ.

Mẫu thiết kế nhà 4x8m 1 tầng với kiểu mái bằng đơn giản
Đối với mẫu nhà 32m2, thiết kế nhà có kiểu dáng mái bằng nên sử dụng những tông màu trắng sáng làm màu chủ đạo, sẽ mang lại cảm giác thoáng mát, rộng rãi cho tổng thể ngôi nhà dù diện tích thật khá nhỏ. Về nội thất cho ngôi nhà, gia chủ nên chọn bố trí những những món nội thất có gam màu trung tính có sự liên kết và hài hòa với nhau.

Những ngôi nhà được bố trí cửa kính sẽ không gian mở mang lại cảm giác rộng rãi, thoáng mát. Kiến trúc mái bằng này mang lại cho thiết kế nhà 4x8m một tổng thể thật trẻ trung, năng động và gọn gàng cho ngôi nhà.


Mẫu thiết kế nhà 4x8m 1 tầng mái Thái ấn tượng
Tại Việt Nam thiết kế nhà 4x8m 1 tầng mái Thái đã không còn quá xa lạ. Đây là mẫu thiết kế được khá nhiều hộ gia đình ưa chuộng, đặc biệt ở khu vực nông thôn được xây dựng rất nhiều. Với phong cách mái Thái kèm theo nội thất bố trí hài hòa, tổng thể ngôi nhà trông đậm nét truyền thống mộc mạc, vừa đơn giản, vừa gần gũi.

Với diện tích 32m2 1 tầng thì chi phí xây dựng ngôi nhà tiết kiệm không quá cao, phù hợp với nhiều người có mong muốn xây nhà. Khách hàng có thể tham khảo các Kiến Trúc Sư tại N&N Home để có được những mẫu thiết kế kiến trúc được săn đón nhiều nhất hiện nay, và khi xây nhà cũng có những phương án bố trí không gian tiện nghi và khoa học nhất.

Mẫu thiết kế nhà 4x8m 1 tầng với không gian mở thoáng mát
Ý tưởng có thiết kế nhà 4x8m 1 tầng với phong cách thật độc đáo, thông thoáng và mới mẻ, Kiến Trúc Sư sẽ có những phương án hợp lý như sử dụng cửa kính hay thiết kế nhiều cửa sổ để nhận được nhiều ánh sáng tự nhiên. Kết hợp bố trí các phòng bếp, phòng ăn, phòng ăn, phòng ngủ, … sao cho hợp lý, có sự liên kết với nhau tạo nên một không gian ấm cúng và gần gũi.


Mẫu thiết kế nhà 4x8m 1 tầng với phong cách độc đáo
Mẫu nhà có diện tích 32m2 tuy nhỏ nhưng N&N Home vẫn có thể gợi ý cho bạn những ý tưởng về ngôi nhà thật sáng tạo tùy theo sở thích của gia chủ. Thiết kế có cửa sổ làm bằng kính hiện đại, ngoại thất sử dụng những gam màu sáng nhẹ nhàng đem lại sự tươi mới va tràn đầy sức sống cho ngôi nhà.


Mẫu thiết kế nhà 4x8m 1 tầng với những gam màu nổi bật
Ngoài những gam màu nhẹ nhàng làm ngôi nhà hiện đại, thoáng mát thì những gam màu nổi bật như hồng đậm, tím đậm, xanh đậm, … thể hiện được sự phá cách, ngôi nhà nổi bật và đầy cá tính.


Vì sao nên lựa chọn N&N Home làm đơn vị thi công:
N&N Home là đơn vị thi công với nhiều năm kinh nghiệm trong lĩnh vực thi công, xây dựng. Chúng tôi cam kết sẽ mang lại những thiết kế độc đáo và sáng tạo. Hơn thế nữa ở N&N Home chúng tôi có cam kết bảo hành 5 năm công trình. Chúng tôi sẽ mang đến cho bạn những thiết kế đẹp và độc đáo nhất.
- Chúng tôi là đơn vị thi công lâu năm và có nhiều năm kinh nghiệm trong lĩnh vực này
- Quan tâm nhiều đến yếu tố công năng nội thất và tính thẩm mĩ.
- Quy trình thi công nhanh chóng và hiệu quả, đảm bảo sẽ hoàn thành đúng thời hạn.
- N&N Home cũng sẽ cung cấp nhiều gói thiết kế linh hoạt tùy theo nhu cầu của khách hàng.
- Khách hàng sẽ nhận được nhiều ưu đãi, khuyến mãi khi lựa chọn dịch vụ của chúng tôi.
- Đội ngũ nhân sự của N&N Home chuyên nghiệp và nhiệt tình luôn sẵn sàng để hỗ trợ khách hàng.

Đội ngũ của N&N Home
Để hiểu rõ hơn về những mẫu thiết kế nhà 4x8m 1 tầng, khách hàng có thể liên hệ ngay cho chúng tôi. Đội ngũ KTS tại N&N Home luôn sẵn sàng phục vụ quý khách hàng giải đáp những thắc mắc cũng như tư vấn những phương án thiết kế phù hợp, tiện nghi, tiết kiệm nhất. Chúng tôi luôn không ngừng học tập thêm nhiều kiến thức cũng như nâng cao năng lực của bản thân để giúp công trình của khách hàng hoàn hảo, chất lượng nhất có thể.

Công ty xây dựng N&N Home – Chuyên thiết kế kiến trúc, xây nhà trọn gói, sửa nhà giá rẻ
Hotline: 0945 170 909 – KTS Nguyên
Website: https://nnhome.com.vn/





