Những mẫu thiết kế nhà 40m2 5x8m vẫn luôn cuốn hút nhiều gia chủ. Với diện tích 40m2, sở hữu diện tích đất hẹp về chiều rộng và dài về chiều sâu. Những ngôi nhà này vẫn đảm bảo tính thẩm mỹ và nhu cầu sử dụng khi có lợi thế tăng diện tích và công năng sử dụng theo chiều cao. Sau đây N&N Home sẽ giới thiệu cho quý khách hàng về các mẫu thiết kế nhà phố nhà 5x8m với diện tích 40m2.
Có thể bạn quan tâm: Báo giá xây nhà trọn gói tại N&N Home
Xu hướng thiết kế nhà nhà 40m2 5x8m
Thiết kế nhà 40m2 5x8m hiện đại ngày càng được nhiều gia chủ quan tâm lựa chọn. Với diện tích đất hạn chế, kiểu nhà này mang đến giải pháp tối ưu không gian cho đô thị đông đúc. Các kiến trúc sư chú trọng cách bố trí khoa học để tạo sự thoáng đãng và tiện nghi cho sinh hoạt.
Nhờ thiết kế thông minh, ngôi nhà vẫn đáp ứng nhu cầu của gia đình từ 3-4 người. Khi xây thêm nhiều tầng, diện tích sử dụng được mở rộng, phù hợp cả gia đình 4-6 thành viên. Đây chính là lý do mẫu nhà 40m2 5x8m trở thành xu hướng được ưa chuộng hiện nay.

Lợi thế của thiết kế nhà 40m2 5x8m
Thiết kế nhà 40m2 5x8m mang đến nhiều ưu điểm nổi bật, phù hợp cho gia đình hiện đại. Với diện tích vừa phải, chi phí xây dựng thấp giúp gia chủ tiết kiệm ngân sách. Thay vì tốn kém cho diện tích lớn, chủ nhà có thể đầu tư vật liệu và nội thất cao cấp. Điều này đảm bảo không gian sống vừa thẩm mỹ, vừa bền vững theo thời gian.
Chi phí xây dựng thấp
Một trong những lợi thế lớn nhất của mẫu nhà 40m2 là chi phí hợp lý. Ngân sách tiết kiệm cho phép đầu tư vào nội thất chất lượng cao. Đây cũng là cơ hội để gia chủ lựa chọn các vật liệu xây dựng tốt, đảm bảo tuổi thọ công trình. Nhờ vậy, ngôi nhà vừa đẹp, vừa vững chắc mà không lo vượt quá tài chính.

Tối ưu hóa không gian
Không gian nhỏ được tận dụng tối đa nhờ các giải pháp thiết kế thông minh. Gác lửng giúp tăng diện tích sử dụng linh hoạt cho nhiều công năng khác nhau. Nội thất đa năng góp phần tiết kiệm diện tích nhưng vẫn đảm bảo tính tiện nghi. Ngoài ra, thiết kế không gian mở còn giúp ngôi nhà thoáng đãng và rộng rãi hơn.

Dễ dàng bảo trì
Diện tích nhỏ gọn giúp việc dọn dẹp trở nên đơn giản và nhanh chóng. Gia chủ không mất nhiều thời gian cho việc bảo trì hằng ngày. Điều này đặc biệt phù hợp với những người có lịch trình bận rộn giúp họ trở nên nhẹ nhàng và thoải mái hơn.

Kinh nghiệm khi thiết kế nhà 40m2 5x8m
Thiết kế nhà 40m2 5x8m không chỉ đòi hỏi sự khéo léo trong bố trí mà còn cần tính toán kỹ lưỡng để tối ưu diện tích. Một ngôi nhà nhỏ vẫn có thể mang lại cảm giác rộng rãi, thoải mái nếu áp dụng đúng nguyên tắc thiết kế. Dưới đây là những kinh nghiệm quan trọng giúp bạn biến không gian hạn chế trở nên tiện nghi và thẩm mỹ.
Lựa chọn màu sắc thiết kế phù hợp
Màu sắc đóng vai trò quan trọng trong việc tạo cảm giác rộng cho nhà 40m2 5x8m. Gia chủ nên ưu tiên các gam màu sáng hay trung tính để mở rộng không gian. Sự kết hợp hài hòa giữa tường, sàn và nội thất giúp căn nhà thêm tinh tế và hiện đại. Đặc biệt, hãy hạn chế quá nhiều màu sắc và chỉ tạo điểm nhấn bằng nội thất hoặc vật dụng trang trí nhỏ.

Bố trí nội thất và sắp xếp không gian hợp lý
Với diện tích nhỏ, cần ưu tiên thiết kế mở để tăng sự thông thoáng cho ngôi nhà. Kết hợp không gian phòng khách, bếp và ăn uống sẽ mang lại sự liền mạch và tiện lợi. Nội thất đa năng và thiết kế tối giản là giải pháp tiết kiệm diện tích hiệu quả. Ngoài ra, có thể sử dụng gương lớn gắn tường để tạo hiệu ứng thị giác giúp ngôi nhà trông rộng hơn.

Ưu tiên ánh sáng tự nhiên cho ngôi nhà
Ánh sáng tự nhiên là yếu tố không thể thiếu khi thiết kế nhà 40m2 5x8m. Cửa kính lớn, giếng trời hoặc ô thông gió giúp căn nhà luôn sáng và thoáng. Việc tận dụng ánh sáng mặt trời không chỉ tạo cảm giác rộng rãi mà còn tiết kiệm điện năng. Đồng thời, mang lại không khí trong lành và dễ chịu cho mọi thành viên trong nhà.

Bản vẽ mặt bằng công năng chi tiết khi thiết kế nhà 40m2 5x8m
Bản vẽ mặt bằng công năng chi tiết giúp gia chủ hình dung rõ ràng cách bố trí không gian. Từng khu vực được sắp xếp khoa học, tối ưu diện tích và thuận tiện khi sử dụng. Nhờ đó, ngôi nhà trở nên tiện nghi, thoáng đãng và phù hợp với nhu cầu sinh hoạt của từng gia đình. Đây cũng là cơ sở quan trọng để triển khai thi công chính xác và hiệu quả.
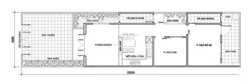
Mặt bằng nhà 5x8m 2 phòng ngủ
Mẫu bản vẽ nhà 2 phòng ngủ thường được nhiều gia đình nhỏ lựa chọn. Không gian được sắp xếp hợp lý giữa phòng khách, bếp và các phòng ngủ. Đảm bảo sự riêng tư mà còn mang lại cảm giác thoải mái. Thiết kế này phù hợp với vợ chồng trẻ hoặc gia đình ít thành viên tạo sự tiện nghi và ấm cúng.

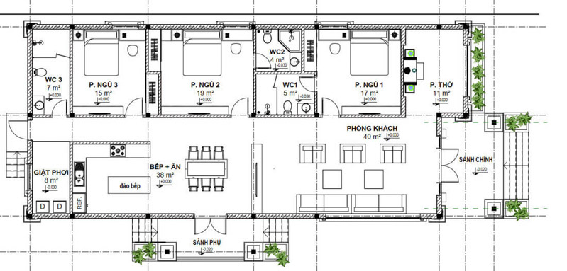
Mặt bằng nhà 5x8m 3 phòng ngủ
Với bản vẽ 3 phòng ngủ, ngôi nhà có thêm không gian rộng rãi cho gia đình đông thành viên. Các phòng ngủ được bố trí tách biệt, tạo sự thoải mái và riêng tư cho từng người. Đây là lựa chọn lý tưởng cho gia đình nhiều thế hệ hoặc có nhu cầu sử dụng thêm phòng dự phòng.

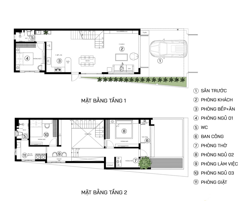
Mặt bằng nhà 5x8m 2 tầng
Mặt bằng nhà 5x8m 2 tầng được bố trí khoa học, tận dụng tối đa diện tích. Tầng trệt thường dành cho không gian sinh hoạt chung như phòng khách, bếp và bàn ăn. Tầng trên bố trí phòng ngủ, ban công và nhà vệ sinh, mang lại sự riêng tư và tiện nghi.

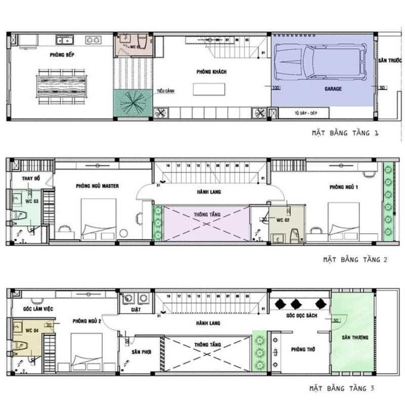
Mặt bằng nhà 5x8m 3 tầng
Thiết kế nhà 3 tầng mang đến nhiều không gian sinh hoạt, đáp ứng nhu cầu của gia đình hiện đại. Tầng trệt thường dành cho phòng khách, bếp và gara. Trong khi các tầng trên là nơi bố trí phòng ngủ, phòng làm việc hoặc phòng thờ. Sự phân chia hợp lý này giúp ngôi nhà vừa tiện lợi vừa sang trọng.

Mặt bằng nhà 5x8m 4 tầng
Nhà 4 tầng là lựa chọn lý tưởng cho gia đình đông người hoặc muốn mở rộng không gian sử dụng. Mỗi tầng được thiết kế với công năng riêng từ sinh hoạt chung đến nghỉ ngơi và làm việc. Nhờ vậy, gia chủ có thể tận dụng tối đa diện tích, đồng thời sở hữu không gian sống hiện đại và bền vững.

Tổng hợp 9+ thiết kế nhà 40m2 5x8m hiện đại
Mẫu nhà 2 tầng thiết kế đơn
Với diện tích và thiết kế nhỏ gọn, ngôi nhà phù hợp với các gia đình nhỏ. Màu trắng là màu chủ đạo cho ngôi nhà thêm những chi tiết màu trầm như đen, nâu, xám tạo sự ấm cúng cho ngôi nhà.


Có thể bạn quan tâm: Top những mẫu thiết kế nhà 40m2 được ưa chuộng nhất 2025
Mẫu nhà 2 tầng diện tích 5x8m có ban công rộng
Mẫu nhà 2 tầng diện tích 5x8m này là lựa chọn lý tưởng cho các gia đình sống tại thành phố. Toàn bộ mặt ngoài sơn trắng tạo cảm giác nhẹ nhàng, tinh tế .Trong khi ban công rộng trên tầng 2 được bố trí cây xanh và bộ bàn ghế. Đây là nơi lý tưởng để quây quần, ngắm trăng và thư giãn. Không gian sống gần gũi thiên nhiên mang lại cảm giác trong lành, dễ chịu cho mọi thành viên trong gia đình.


Mẫu nhà thiết kế 2 diện tích 5x8m tầng mái bằng
Mẫu nhà 2 tầng diện tích 5x8m sử dụng mái bằng với lớp bê tông dày, cán phẳng đều. Thiết kế này mang đến vẻ đẹp thanh lịch, năng động và hiện đại, thay thế cho các kiểu mái truyền thống như mái thái, mái tôn hay mái lệch. Nội thất trong nhà được lựa chọn tỉ mỉ, gọn gàng, không chiếm nhiều diện tích và tạo sự thông thoáng cho lối đi. Tuy là một trong những thiết kế đơn giản nhất, nhưng mẫu nhà này vẫn giữ được sự trang trọng, độc đáo và đáp ứng đầy đủ nhu cầu sinh hoạt của gia đình.

Tham khảo: Ấn tượng những mẫu thiết kế nhà 40m2 2 tầng 3 phòng ngủ cực đẹp

Mẫu nhà 2 tầng diện tích 5x8m theo phong cách tân cổ điển
Mẫu nhà 2 tầng diện tích 5x8m phong cách tân cổ điển mang đậm nét hoài cổ và truyền thống. Gam màu vàng chủ đạo tạo cảm giác ấm cúng, gắn kết và gần gũi. Ngôi nhà gây ấn tượng mạnh với phần mái thái sang trọng, cổ điển và uy nghiêm.
Dù diện tích chỉ 40m², mọi không gian đều được bố trí khoa học và hợp lý. Nội thất gỗ cao cấp được sử dụng khéo léo, mang lại sự sang trọng và ấm áp. Tất cả kết hợp hài hòa, tạo nên không gian sống tiện nghi, đáp ứng đầy đủ nhu cầu của các thành viên trong gia đình.

Thiết kế nhà 2 tầng diện tích 5x8m mái chéo
Từ ngoài bước vào, bạn sẽ bắt gặp phòng khách với thiết kế đơn giản và nhẹ nhàng. Giữa các không gian như phòng khách, bếp và cầu thang không dùng tường bê tông ngăn cách, tạo cảm giác thoáng đãng. Toàn bộ đồ dùng trong nhà được chọn theo gam màu trắng tinh khôi, mang đến sự tinh tế và hài hòa. Nếu muốn tạo điểm nhấn ấn tượng và đa phong cách hơn, gia chủ có thể trang trí thêm bằng giấy dán tường, rèm cửa hay thảm lông.


Mẫu nhà 2 tầng diện tích 5x8m có 1 gác lửng
Toàn bộ gác lửng được lắp đặt bằng kính, vừa tiết kiệm chi phí vừa dễ vệ sinh. Gia chủ có thể linh hoạt sử dụng không gian này làm phòng ngủ, phòng sinh hoạt chung hoặc phòng thờ trang nghiêm. Mẫu thiết kế nhà 40m² đảm bảo đầy đủ công năng cho cả gia đình. Với tông trắng chủ đạo giúp không gian thêm nhẹ nhàng, hiện đại và năng động. Đặc biệt, chi phí xây dựng chỉ từ 500 triệu đồng, phù hợp với nhiều gia đình.


Thiết kế nhà 3 tầng diện tích 5x8m theo hướng mới lạ
Thay vì lựa chọn phong cách thiết kế cầu kỳ, xa hoa, ngoại thất ngôi nhà được thiết kế tối giản nhưng không làm mất đi nét tinh tế, uy nghi sang trọng của công trình. Điểm nhấn rõ nét nhất là ở hệ cửa và lam chắn với khung nhôm với các vân nâu đầy sang trọng và nghệ thuật.

Mọi người cũng quan tâm: Ấn tượng những mẫu thiết kế nhà 4x15m có gara được ưa chuộng 2025
Với diện tích mặt bằng nhỏ nhưng các kiến trúc sư vẫn có thể tạo ra những mẫu thiết kế nhà 40m2 5x8m độc đáo , đảm bảo được công năng sử dụng hiệu qủa. . Điểm hay ở mẫu nhà đẹp này là phần mái nhọn và các hình khối nhô ra thụt vào trong rất lạ mắt, giao thoa giữa kiến trúc và tự nhiên.

Mẫu nhà 3 tầng diện tích 5x8m đơn giản, bình dị
Mẫu nhà 3 tầng mang hơi hướng hiện đại và sự sang trọng, tạo nên một không gian nghỉ dưỡng thoải mái nhất cho gia đình. Kết cấu của căn nhà hiện lên với dáng vẻ vững trãi và chắc chắn nhưng cũng không kém phần mềm mại khi có sự xuất hiện của lớp sơn màu kem và màu nâu nhạt của gạch ốp tường.


Trên đây là các gợi ý về các mẫu thiết kế nhà 40m2 5x8m đầy tiện nghi, cá tính và hiện đại. NN Home mong sẽ giúp được quý khách hàng có thêm ý tưởng cho chính tổ ấm của mình. Nếu vẫn còn thắc mắc và câu hỏi, NN Home luôn sẵn sàng giúp đỡ quý khách hàng với đội ngũ tâm huyết và nhiệt tình.
Công ty xây dựng N&N Home
Địa chỉ: 15 Khu Dân Cư Vườn Cau, Phường Hiệp Bình Phước, Q.Thủ Đức TPHCM
Hotline: 0945 170 909 (KTS. Nguyên)
Website: https://nnhome.com.vn/





