Những thiết kế nhà phố ngày càng được nhiều gia đình trẻ lựa chọn bởi giá thành phải chăng, thiết kế mang lại không gian sống tiện nghi và giá trị thẩm mỹ cao. N&N Home xin giới thiệu đến bạn những mẫu nhà 3 tầng 1 tum hiện đại siêu hot qua bài viết bên dưới đây.
Lý do nên chọn mẫu nhà 3 tầng 1 tum hiện đại
Tiết diện tích
- Thiết kế này tận dụng tối đa diện tích của căn nhà, đặc biệt là đối với kiểu nhà ống có diện tích hẹp.
- Cung cấp thêm không gian cho phòng ngủ, phòng thờ hoặc kho chứa đồ, giúp gia đình sử dụng hiệu quả và tiện nghi hơn.

Tiết kiệm chi phí
- Thực tế cho thấy, việc xây dựng nhà 3 tầng 1 tum sẽ tiết kiệm chi phí hơn so với việc xây thêm 1 tầng mới.
- Mẫu nhà với tính ứng dụng cao ứng cao đối với mọi gia đình.


Tính thẩm mỹ cao
- Mẫu nhà 3 tầng 1 tum nằm ở sự kết hợp hài hòa giữa phong cách kiến trúc hiện đại, lựa chọn màu sắc và vật liệu tinh tế.
- Không gian bố trí thông minh và sử dụng ánh sáng tự nhiên.
- Các chi tiết thiết kế đa dạng và được chăm chút một cách hài hoà
Điều này tạo nên một không gian sống đẳng cấp, đồng thời đáp ứng được mọi nhu cầu sinh hoạt và thẩm mỹ cho gia đình.

Mặt bằng công năng mẫu nhà 3 tầng 1 tum
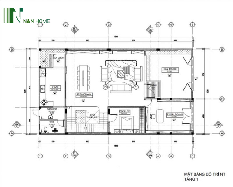
Tầng 1:

Không gian tầng 1 của mẫu nhà 3 tầng 1 tum được thiết kế vừa để ở vừa phục vụ kinh doanh. Phía trước là sân trước rộng rãi, tiếp nối là phòng kinh doanh thuận tiện cho buôn bán hoặc mở văn phòng nhỏ. Trung tâm ngôi nhà là phòng khách kết hợp phòng ăn rộng thoáng, liên thông với phòng bếp và sân vườn sau, tạo nên sự gắn kết trong sinh hoạt gia đình. Ngoài ra, tầng này còn có một phòng ngủ cho ông bà hoặc khách, WC đặt hợp lý cùng thang máy và cầu thang bộ ở giữa, vừa tiện di chuyển vừa tăng tính hiện đại.
Tầng 2:

Tầng 2 là không gian nghỉ ngơi riêng tư với hai phòng ngủ rộng thoáng, trong đó phòng ngủ master có WC khép kín và ban công riêng. Phòng ngủ còn lại cũng được bố trí đầy đủ tiện nghi và dùng chung với WC riêng. Ngoài ra, tầng 2 còn có khu giặt phơi và khoảng thông tầng giúp không khí trong nhà luôn thông thoáng.
Tầng 3:

Cách bố trí tương tự tầng 2, gồm hai phòng ngủ, mỗi phòng đều có ban công riêng đón ánh sáng tự nhiên. Bên cạnh đó là hai WC khép kín, khu giặt phơi và thang máy ở trung tâm, đảm bảo sự thuận tiện trong sinh hoạt. Nhờ thiết kế này, mỗi thành viên đều có không gian riêng thoải mái, nhưng vẫn gắn kết trong tổng thể ngôi nhà.
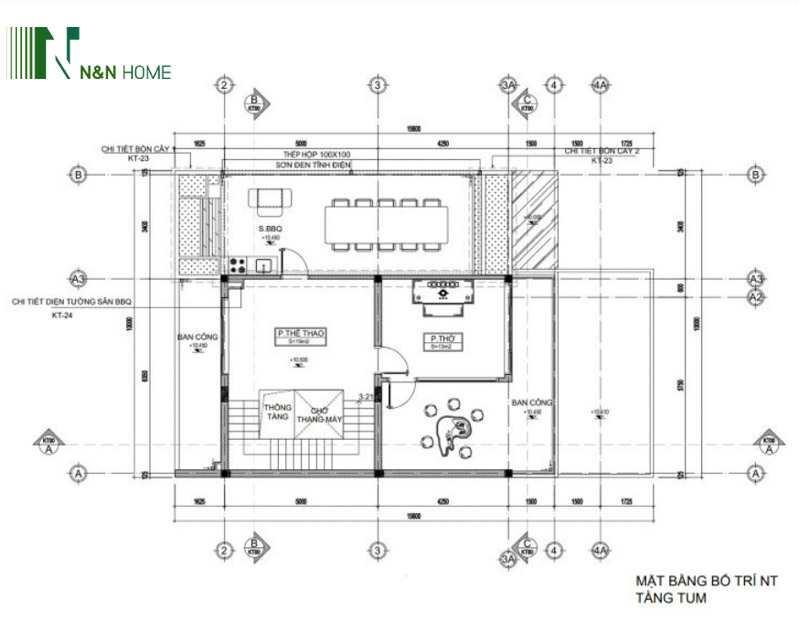
Tầng tum:

Trong thiết kế mẫu nhà 3 tầng 1 tum, tầng tum được bố trí khoa học với sảnh thang và chờ thang máy kết nối các không gian. Phía trước là phòng thể thao và phòng thờ trang nghiêm, đảm bảo công năng và phong thủy. Hai ban công thoáng đãng, gồm sân BBQ – bàn ăn ngoài trời và góc thư giãn xanh mát, mang lại sự tiện nghi và thẩm mỹ cho ngôi nhà.
Top 30+ Mẫu nhà 3 tầng 1 tum mới nhất
Mẫu nhà 3 tầng 1 tum phong cách hiện đại
Nhìn tổng thể kiến trúc ngoại thất của mẫu nhà 3 tầng 1 tum mang đậm phong cách hiện đại, điểm nhấn hút mắt đến từ đường nét trang trí cầu kỳ, mảng khối vuông vắn, vững chắc.



Ngôi nhà ba tầng với thiết kế hiện đại và đầy đủ các tiện nghi
Mẫu nhà 3 tầng 1 tum phong cách tân cổ điển
Phong cách tân cổ điển với màu sắc trang nhã, vật liệu chất lượng cao. Tạo nên một không gian sống vừa trang nhã và ấm cúng, vừa đảm bảo tiện nghi và tiện ích cho gia đình




Thiết kế nhà 3 tầng 1 tum có gác lửng tiện lợi
Ngôi nhà tích hợp có gác lửng không chỉ là giải pháp tối ưu cho không gian sống mà còn là một phần quan trọng trong việc nâng cao giá trị thẩm mỹ và sự tiện nghi của ngôi nhà.




Mẫu nhà 3 tầng 1 tum có ban công thoáng mát
Thiết kế nhà phong cách năng động với ban công cây xanh và khu vườn nhỏ trên tầng tum tạo không gian thư giãn và tổ chức BBQ cho gia đình.




Mẫu nhà 3 tầng 1 tum tích hợp gara ô tô
Thiết kế 3 tầng 1 tum tích hợp gara ô tô là một lựa chọn hiện đại và tiện nghi, phù hợp với gia đình có nhu cầu sử dụng và bảo quản ô tô một cách an toàn và tiện lợi.




Ngôi nhà 3 tầng 1 tum mái thái độc đáo
Thiết kế mái Thái với đường nét cong mềm mại tạo điểm nhấn đặc biệt, làm tăng giá trị thẩm mỹ và sự phong phú cho không gian sống.





Những lưu ý khi xây dựng nhà 3 tầng 1 tum
Tiết kiệm năng lượng:
- Chọn hướng nhà để tối ưu hóa ánh sáng tự nhiên
- Sử dụng đèn LED giúp tiết kiệm năng lượng.
- Sử dụng vật liệu cách nhiệt giảm năng lượng cho điều hòa.

An toàn ngôi nhà:
- Sử dụng vật liệu chất lượng cao, thiết kế kết cấu chắc chắn và tuân thủ các tiêu chuẩn an toàn trong thi công và sử dụng.

Đơn vị thiết kế xây dựng:
Kinh nghiệm thực tế và hồ sơ năng lực
Chọn đơn vị đã có kinh nghiệm triển khai nhiều dự án tương tự giúp đảm bảo sự am hiểu thực tế, khả năng xử lý tình huống và giải quyết các vấn đề phát sinh trong quá trình thi công.
Đội ngũ kiến trúc sư – kỹ sư chuyên môn cao
Một đơn vị có đội ngũ chuyên nghiệp sẽ đưa ra giải pháp thiết kế tối ưu, đảm bảo công trình vừa đẹp, vừa bền vững và tiết kiệm chi phí.

Quy trình làm việc rõ ràng, minh bạch
Đơn vị uy tín sẽ có quy trình từ tư vấn, khảo sát, lên bản vẽ đến giám sát thi công một cách bài bản, giúp bạn dễ dàng theo dõi tiến độ và kiểm soát ngân sách.
Phong cách thiết kế phù hợp xu hướng
Mỗi đơn vị có thế mạnh riêng về phong cách: hiện đại, tối giản, tân cổ điển hay nhà vườn… Việc chọn đơn vị có gu thẩm mỹ gần với nhu cầu sẽ giúp công trình mang tính cá nhân hóa cao hơn.
Khả năng đồng hành lâu dài trong thi công
Một số đơn vị thiết kế đồng thời cung cấp dịch vụ xây dựng trọn gói sẽ giúp bạn thuận tiện hơn khi triển khai thực tế. Sự đồng bộ giữa thiết kế và thi công giúp giảm rủi ro và tiết kiệm thời gian.
Chính sách bảo hành – hậu mãi
Các công ty uy tín thường có chế độ bảo hành công trình và hỗ trợ kỹ thuật sau khi bàn giao, thể hiện trách nhiệm lâu dài với khách hàng.
Đánh giá từ khách hàng cũ
Những phản hồi thực tế từ các dự án đã hoàn thành sẽ là minh chứng rõ ràng về chất lượng và mức độ chuyên nghiệp của đơn vị thiết kế.
Xây dựng nhà 3 tầng 1 tum tốn bao nhiêu?
Chi phí phụ thuộc vào nhiều yếu tố:
- Diện tích xây dựng (m²)
- Mức độ hoàn thiện (cơ bản hay cao cấp)
- Vật liệu sử dụng (trung bình hay cao cấp)
- Địa hình khu đất (bằng phẳng, yếu, hay cần gia cố móng)
- Vị trí địa lý (nội thành hay vùng ven, ảnh hưởng đến giá nhân công và vận chuyển)
- Yêu cầu thiết kế riêng (cầu kỳ hay đơn giản)
Đơn giá xây dựng tham khảo (năm 2025):
- Phần thô + nhân công hoàn thiện: 3.600.000 – 4.500.000 VNĐ/m²
- Xây dựng trọn gói hoàn thiện cơ bản: 6.000.000 – 8.000.000 VNĐ/m²
- Hoàn thiện cao cấp: 9.000.000 – 12.000.000 VNĐ/m²

Ước tính tổng chi phí:
(ví dụ cho diện tích 70m² x 4 tầng = 280m²)
- Hoàn thiện cơ bản: khoảng 1,6 – 2,2 tỷ VNĐ
- Hoàn thiện cao cấp: khoảng 2,5 – 3,4 tỷ VNĐ
Ưu điểm của mẫu nhà 3 tầng 1 tum:
- Tối ưu không gian sống cho gia đình 4–6 người
- Tầng tum có thể dùng làm phòng thờ, phòng kho, sân phơi hoặc phòng thư giãn
- Dễ dàng tích hợp thang máy nếu có nhu cầu
- Phù hợp với lô đất thành phố có mặt tiền 4–6m
Khuyến nghị từ chuyên gia:
- Nên khảo sát và báo giá trực tiếp theo từng công trình
- Liên hệ N&N Home để được tư vấn phương án thiết kế phù hợp với ngân sách
Mẫu thiết kế nhà 3 tầng 1 tum nhấn mạnh vào việc tối ưu hóa không gian sống, tích hợp tiện nghi hiện đại và sự thẩm mỹ sang trọng. Là lựa chọn tuyệt vời cho mọi nhà.
N&N Home – Chuyên thiết kế kiến trúc, xây nhà trọn gói, sửa nhà giá rẻ tại TP.HCM

Nếu bạn đang tìm kiếm một đơn vị thiết kế và thi công uy tín tại TP.HCM, N&N Home là một lựa chọn đáng tin cậy. Với nhiều năm kinh nghiệm trong lĩnh vực thiết kế kiến trúc – xây dựng trọn gói – sửa chữa nhà ở, công ty đã đồng hành cùng hàng trăm khách hàng để kiến tạo nên những công trình đẹp, bền và phù hợp ngân sách.
Ưu điểm nổi bật của N&N Home:
- Thiết kế sáng tạo, cập nhật xu hướng hiện đại, đáp ứng đa dạng nhu cầu từ nhà phố, biệt thự đến nhà cấp 4.
- Dịch vụ xây nhà trọn gói chuyên nghiệp, cam kết rõ ràng về tiến độ, chi phí và chất lượng vật tư.
- Sửa chữa nhà giá rẻ, tối ưu giải pháp thi công để tiết kiệm chi phí mà vẫn đảm bảo độ bền và thẩm mỹ.
- Đội ngũ KTS, kỹ sư có chuyên môn cao, luôn tận tâm và sẵn sàng tư vấn giải pháp tối ưu nhất cho từng khách hàng.

Hy vọng bài viết này có thể giúp các bạn có thêm ý tưởng cho ngôi nhà của mình. Nếu các bạn có nhu cầu, có thể cân nhắc lựa chọn dịch vụ thiết kế xây dựng tại N&N Home mang lại không gian sống chất lượng phù hợp với mong muốn của Quý khách hàng.
Công ty xây dựng N&N Home – Chuyên thiết kế kiến trúc, xây nhà trọn gói, sửa nhà giá rẻ
Địa chỉ: 15 Quốc Lộ 13, Phường Hiệp Bình, TP Hồ Chí Minh, Việt Nam
Hotline: 0945 170 909 – KTS Nguyên
Website: https://nnhome.com.vn/





